



Av. del Carril Villa Pueyrredón
$ /consultar
Características:
5
habitaciones
4
Baños
m²
Descripción general
Habitaciones:
5
Baños:
4
Garajes:
1
Área:
Superficie:
Descripción
A una cuadra de Av. Nazca, cuatro de Av. Mosconi, cinco del Metrobús San Martín y cerca de la estación Libertador. Zona con excelente conectividad y entorno familiar: escuelas, jardines, comercios, restaurantes y a solo tres cuadras de la Plaza Martín Rodríguez. Barrio tranquilo y seguro.
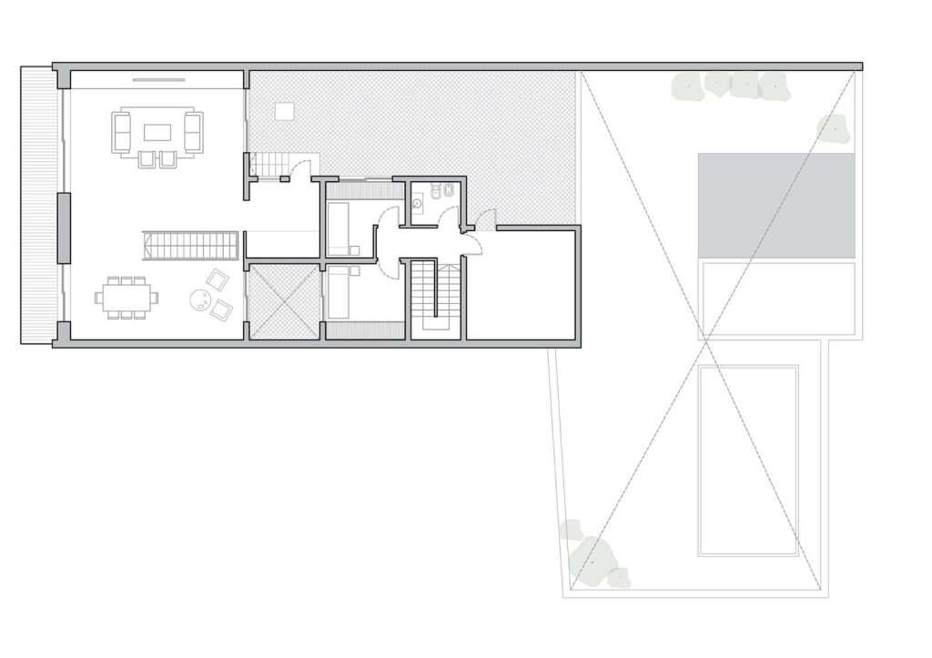
Amplia propiedad en dos plantas, con terraza, fondo libre y cochera para dos autos.
- Hall de entrada
- Living comedor
- Cocina y comedor diario (independiente)
- 5 dormitorios (uno en suite)
- 4 baños
- Fondo con pileta, parrilla, quincho y espacio verde
- Salón de usos múltiples de 9×9 m, con ventilación cruzada
- Lavadero y secadero
Actualmente se están realizando trabajos de pintura y mantenimiento general.
Ideal para familias numerosas o dos grupos familiares.
¡Avísanos y coordinamos visitas sin compromiso!
Características
- Espacio verde
- Hall de entrada
- Lavadero
- Living comedor
- Parrilla
- Pileta
- Quincho
- Salón de usos múltiples
- Secadero
Video
Planos de planta
Precio:
Área: m²
Dormitorios:
Baños:
Ubicación
Datos de contacto
Estudio de arq. Clover
clover.arq@gmail.com
- Jose A. Cabrera 5599, Palermo Hollywood, CABA
- 11-4420-5077
Propiedades relacionadas
